1. L'Agence
  2. Programmes neufs
  3. Appartement T3 - 63,7 m² - Septème - 2 places de stationnement privatives
Retour
Nouveau

Appartement T3 - 63,7 m² - Septème - 2 places de stationnement privatives

Septème
Description

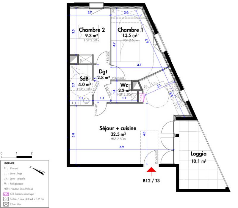
L'agence VERNAY IMMOBILIER a le plaisir de vous présenter en plein coeur du village ,un appartement de type 3 de 63.7m2 ( B12 ) et terrasse de 10.1m2 avec 2 places de stationnement privatives.

A proximité immédiate des écoles et des commerces .



CARACTERISTIQUES :

Surface habitable 63.70m2

terrasse de 10.1m2

séjour/cuisine de 32.5 m2

toilettes de 2.2 m2

dégagement 2.8 m2

salle de bain de 4 m2

chambre 1 de 13.5m2 avec placard

chambre 2 de 9.3 m2 avec placard

EXPOSITION nord /ouest



PRESTATIONS

Chauffage PAC

Menuiseries en PVC et ALU ,

volets battants en bois lasuré

Sèche serviette

Carrelage dans les pièces principales ( choix du client )

Parquet dans les chambres ( choix du client )

Isolation phonique et thermique

Fibre optique



Honoraires à la charge du vendeur

 

Pour plus d'informations contactez Marie-Christine JANDARD au 06 63 20 96 81 - 04 72 70 60 71

Agent commercial immatriculé au RSAC de Vienne sous le numéro 410 158 315

Surface habitable 64m²
Nombre chambres 2
239900€
Nombre salles de bain/d'eau 1
Année de construction 2025
Copropriété OUI
Ascenseur OUI
Extérieur Terrasse 10 m²
Chauffage PAC
Nous écrire
Les champs indiqués par un astérisque (*) sont obligatoires
Un projet ?
Prenez rendez-vous pour échanger avec nous !