1. L'Agence
  2. Biens vendus
  3. Plateau à aménager en RDC avec jardin à Oytier Saint Oblas
Retour
Vendu

Plateau à aménager en RDC avec jardin à Oytier Saint Oblas

Oytier-Saint-Oblas
Description

VENDU !!!

L’agence VERNAY IMMOBILIER a le plaisir de vous présenter, sur la commune de Oytier-Saint-Oblas, dans une ancienne maison divisée en 4 lots comprenant :

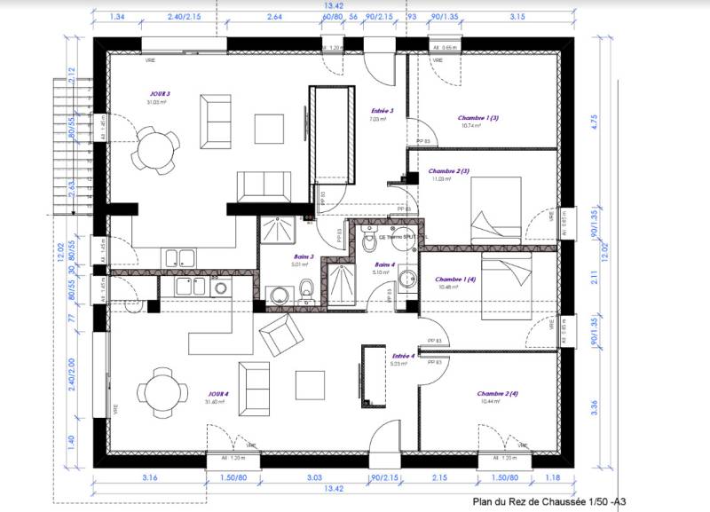
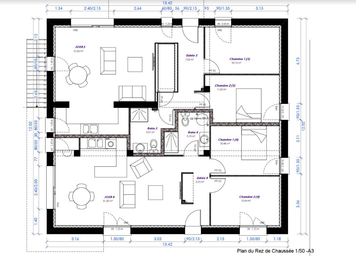
Un plateau à aménager de type 3 d’une superficie de 64,5 m². (Idée de plan d’aménagement en annexe). 

Deux places de parking privative ainsi qu’un jardin de 160 m² complètent ce bien.

Le grand plus de ce bien, une cave de 25 m²

Le bien sera vendu HORS D’EAU / HORS D’AIR.

Dans ce magnifique projet ou vous pourrez laisser courir votre imagination les prestations sont :

- Ce bien est raccordé au tout à l’égout

- Façade en enduit minéral finition « grattée »

- Réfection de la toiture (film sous toiture) charpente traditionnelle avec couverture en tuiles terre-cuite

- Zinguerie RAL 7016

- Bandeau et sous-faces PVC RAL 7016

- Menuiseries extérieures : Porte d'entrée et fenêtres en PVC et baies coulissantes en Aluminium ou PVC.

- Volets roulants à lames Aluminium motorisés

- Toutes les menuiseries seront en couleur RAL 7016

- Les jardins privatifs seront fermés par un grillage rigide hauteur 1.30 m avec un portillon RAL 7016 posé sur un soubassement de 20 cm environ.

- Equipements communs : un local poubelles, places de parking visiteurs

Les honoraires sont à la charge du vendeur

Pour plus d'informations contactez Marie-Christine JANDARD au 06 63 20 96 81 - 04 72 70 60 71

Agent commercial immatriculé au RSAC de Vienne sous le numéro 410 158 315

Surface habitable 64m²
Nombre chambres 2
147000€
Nombre salles de bain/d'eau 1
Étage RDC
Extérieur OUI
Piscine NON
Nous écrire
Les champs indiqués par un astérisque (*) sont obligatoires
Un projet ?
Prenez rendez-vous pour échanger avec nous !