1. L'Agence
  2. Biens vendus
  3. LOT G Appartement Duplex - 101.25 m² - Pont Evêque
Retour

LOT G Appartement Duplex - 101.25 m² - Pont Evêque

Pont-Evêque
Description

VENDU !!

L’agence VERNAY IMMOBILIER a le plaisir de vous présenter, sur la commune de Pont-Evêque, dans un cadre de vie privilégié, dans une ancienne bâtisse pleine de charme, ce tènement divisé en 7 lots  comprenant :

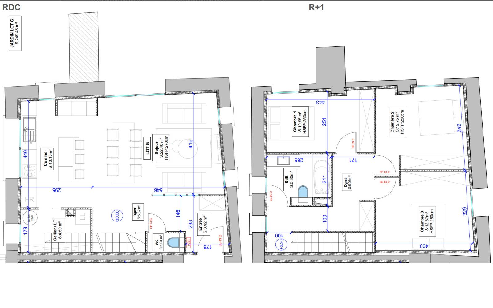
Un plateau à aménager de type 4 en duplex d’une superficie de 101.25 m². (Idée de plan d’aménagement en annexe)

Un box fermé, une place de parking privative ainsi qu’un jardin de 247.36 m² complètent ce bien.

Le bien sera vendu HORS D’EAU / HORS D’AIR.

Dans ce magnifique projet ou vous pourrez laisser courir votre imagination les prestations sont :

-        Ce bien est raccordé au tout à l’égout

-        Façade en enduit minéral finition « grattée »

-        Réfection de la toiture (film sous toiture) charpente traditionnelle avec couverture en tuiles terre-cuite

-        Zinguerie RAL 7016

-        Bandeau et sous-faces PVC RAL 7016

-        Menuiseries extérieures : Porte d’entrée acier, fenêtres en PVC et baies coulissantes en Aluminium.

-        Volets roulants à lames Aluminium motorisé, volet ouvrant en finition PVC sur les ouvertures

-        Toutes les menuiseries seront en couleur RAL 7016

-        Création d’une trémie pour l’installation du futur escalier à l’intérieur de chaque lots

-        Un box fermé porte basculante, dalle béton intérieur.

-        Les parties communes, zone de stationnements, espace vert commun délimités par bordure type P1 / finition gravillon fin sur les espaces de circulation

-        Les jardins privatifs seront fermés par un grillage rigide hauteur 1.30 m avec un portillon RAL 7016 posé sur un soubassement de 20 cm environ.

-        Equipements communs : un compteur pour la copropriété, un local vélo et un local poubelles, places de parking visiteurs

 

Les honoraires sont à la charge du vendeur

Pour plus d'informations contactez Marie-Christine JANDARD au 06 63 20 96 81 - 04 72 70 60 71

Agent commercial immatriculé au RSAC de Vienne sous le numéro 410 158 315

Surface habitable 101m²
Nombre chambres 3
199500€
Surface séjour 22m²
Surface terrain 247m²
Nombre salles de bain/d'eau 1
Niveaux 2
Copropriété OUI
Nombre de lots de la copropriété 7
Nous écrire
Les champs indiqués par un astérisque (*) sont obligatoires
Un projet ?
Prenez rendez-vous pour échanger avec nous !